



Opis nieruchomości
Nowe mieszkania deweloperskie – Wałbrzych, Poniatów, ul. Orzechowa
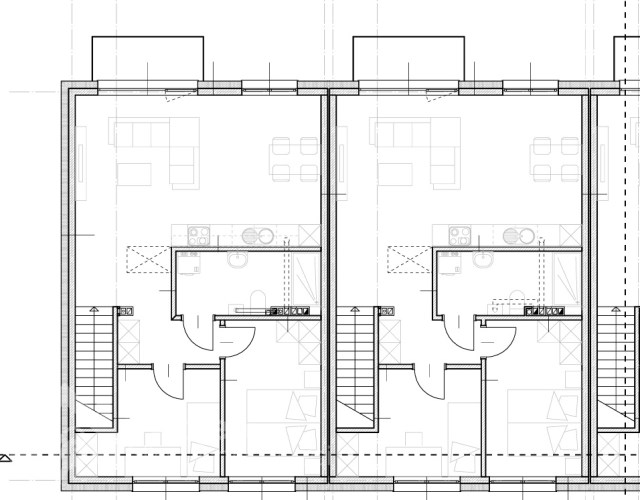
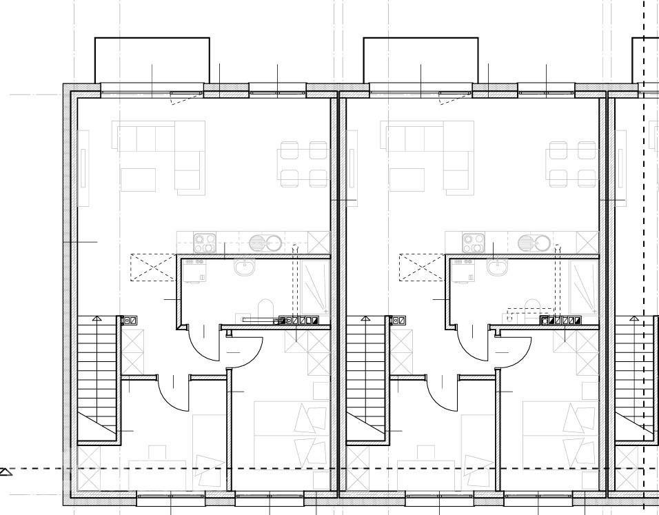
Przedstawiam ofertę nowych, trzypokojowych mieszkań powstających w ramach inwestycji na prestiżowym osiedlu przy ul. Orzechowej w Wałbrzychu – dzielnica Poniatów.Inwestycja obejmuje 10 mieszkań z osobnymi, niezależnymi wejściami:
- 5 mieszkań parterowych o powierzchni 61,5 m² z bezpośrednim wyjściem do prywatnego ogródka,
- 5 mieszkań na piętrze o powierzchni 64,5 m² z dostępem do strychu do wyłącznego korzystania.
- Układ: 3 pokoje z funkcjonalnym rozkładem pomieszczeń,
- Ogrzewanie: piec gazowy dwufunkcyjny w standardzie,
- Osobne wejścia dla każdego lokalu,
- Możliwość zakupu miejsca postojowego w cenie 19 900 zł,
- Opcjonalnie: zakup ogródka (dla mieszkań piętrowych).
- Rozpoczęcie budowy: IV kwartał 2025 r.
- Zakończenie budowy: IV kwartał 2026 r.
- Przeniesienie własności: II kwartał 2027 r.
- System deweloperski – bezpieczny i przejrzysty proces,
- Rezerwacja z gwarancją ceny – tylko 1% wartości mieszkania,
- Promocyjna cena dla pierwszych klientów.
- Kameralne, nowoczesne osiedle w zielonej i spokojnej okolicy,
- Atrakcyjny układ mieszkań, idealny dla rodzin i par,
- Wysoki standard wykonania,
- Dodatkowa przestrzeń – ogródki i strychy do wyłącznego użytku,
- Bliskość terenów zielonych, dobry dojazd do centrum Wałbrzycha.
Biuro Twoje Nieruchomości zapewnia kompleksową obsługę:
– weryfikację stanu prawnego,
– analizę zdolności kredytowej i pomoc w uzyskaniu finansowania,
– przygotowanie umów i dokumentów,
– koordynację czynności notarialnych aż do przekazania nieruchomości.
Nota prawna
Opis oferty zawarty na stronie internetowej sporządzany jest na podstawie oględzin nieruchomości oraz informacji uzyskanych od właściciela, może podlegać aktualizacji i nie stanowi oferty określonej w art. 66 i następnych K.C.Szczegóły




